















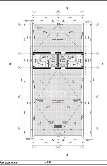
Proprietatea are o suprafață utilă de 140 mp + garaj, este construită pe un teren de 300 mp, cu o curte liberă de 180 mp, și oferă un rooftop spectaculos de 72 mp, cu priveliște față–spate asupra orașului.
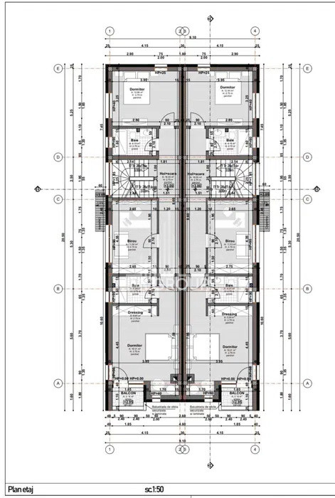
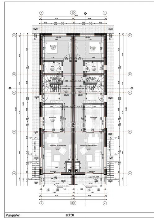
Compartimentarea este excelent gândită:
Demisol: garaj automatizat, cameră tehnică, debara și spațiu multifuncțional ce poate fi amenajat ca locuință, sală de sport sau atelier;
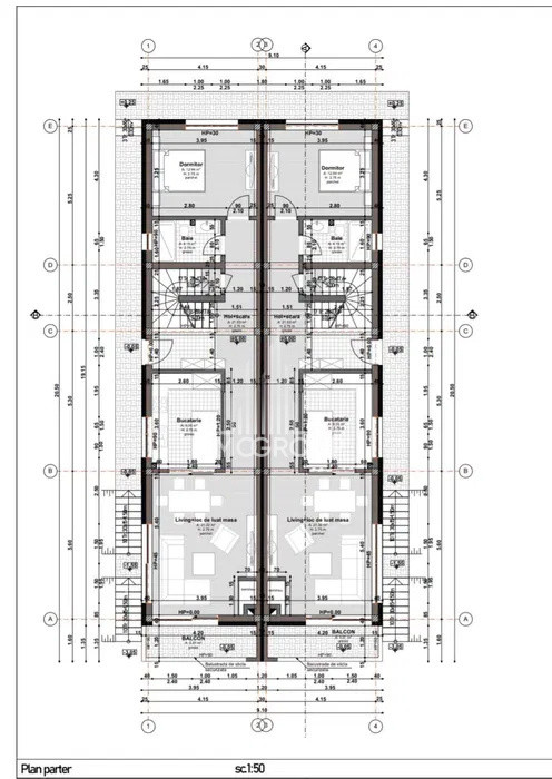
Parter: living cu bucătărie open-space și acces la o terasă de 8 mp, dormitor, baie și hol;
Etaj: dormitor matrimonial cu dressing, baie proprie și terasă, dormitor secundar, birou (sau al patrulea dormitor), baie și hol;
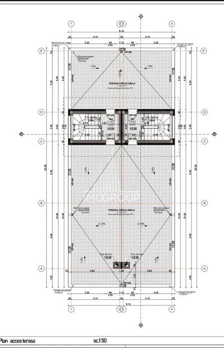
Rooftop: 72 mp, prevăzut cu puncte de apă rece/caldă și prize pe ambele laturi – ideal pentru bar, piscină sau zonă de relaxare.
Construcția este de înaltă calitate, realizată din cărămidă Porotherm de 25 cm, cu izolație din polistiren de 20 cm, încălzire în pardoseală (garanție 10 ani), panouri fotovoltaice de 5 kW, curent trifazic, centrală și boiler Vaillant (200L, cu pompă de recirculare), aer condiționat și tâmplărie PVC premium Veka 82 tripan Four Seasons.
Terasa rooftop beneficiază de o izolație superioară: polistiren 20 cm, barieră de vapori, șapă 10 cm și dublă hidroizolație bituminoasă Bauder.
Există posibilitate de șemineu, circuit pentru încărcare mașină electrică, iar în fața casei se pot parca două mașini (una în garaj și una exterior).
Casa este situată pe o stradă fără vizavi, la 100 m de strada principală, în vecinătatea parcului, cu orientare sud–vest. Acces facil la transport public: stație de autobuz la 100 m și tramvai la 5 minute.
Termen finalizare: Noiembrie 2025