













Va propunem spre inchiriere un spatiu de birou, modern, situat la etajul 3 intr-un imobil cu regim de inaltime S+P+5, construit in 2016.
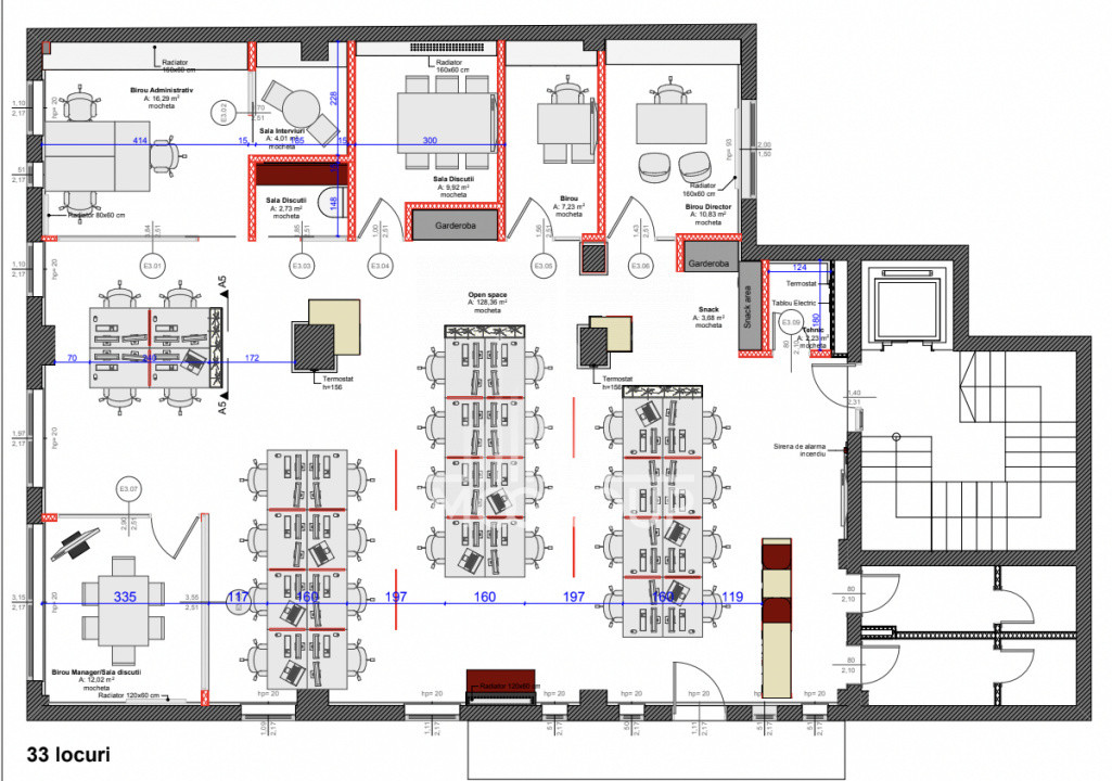
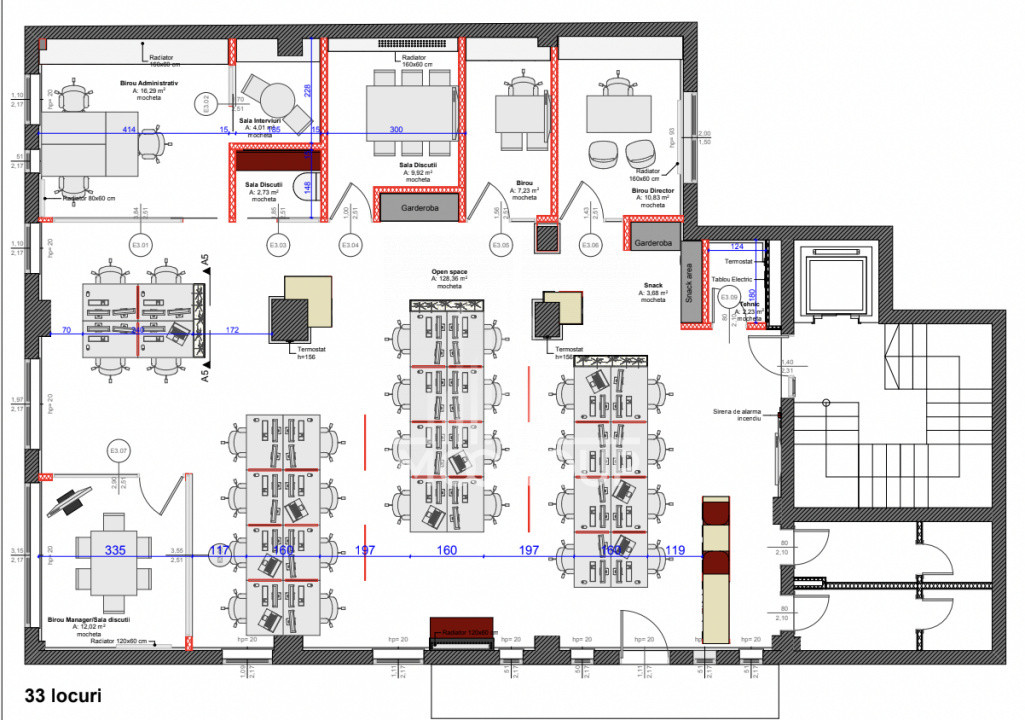
Spatiul dispune de o suprafata de aproximativ 240mp utili, este compartimentat in 7 incaperi, se inchiraza dupa cum se vede in poze si este disponibil imediat!
Separat se poti inchiria pana la 15 locuri de parcare la 50 Euro fiecare.
De asemena imobilul dispune si de:
Spațiu tip lounge, ideal pentru relaxare și socializare
Bucătărie complet utilată;
Acces direct la o terasă privată de 153 mp, perfectă pentru pauze, evenimente sau activități afterwork;
Spațiul oferă flexibilitate în amenajare, cu posibilitatea de a suplimenta suprafața utilă în funcție de nevoile clientului.
Imobilul este amplasat într-o zonă cu acces rapid la mijloace de transport în comun, precum și în proximitatea restaurantelor, magazinelor alimentare, băncilor și altor facilități.